EPIC.png

This Is Epic

A curation of our design ideas and inspirations for houses in Goa, contemporary art and architecture.

 

 

 

 

Record Houses that bring the indoors outdoors...

The Bahia House, Salvador, Brazil designed by Studio MK27 

A

rchitectural Record

, 'the' premier global magazine for architecture and design publishes a selection of homes each year that make the cut. In their selection, the magazine looks for innovation in design along with timelessness in architectural response. While these may sound like seemingly contradictory principles, I guess the ability to be both innovative while being timeless makes an architectural product truly inspiring. Among other factors, the 2011 selection highlighted the responsiveness of the architectural projects to their surrounding landscape. This principle has been the central theme in our design process and thus this year's project selection was of particular interest to us.

Two projects in particular caught our eye. Both are contemporary country homes and share many design principles and concepts that we are using for our house NIVIM in Goa. The interesting aspect is that both houses are built in completely different materials and technology but utilize the same principles of responsiveness to site and relationship to outdoors.

The Bahia House, Salvador, Brazil designed by Studio MK27 

The Montecito Residence, Montecito, California designed by Barton Myers Associates

First is the

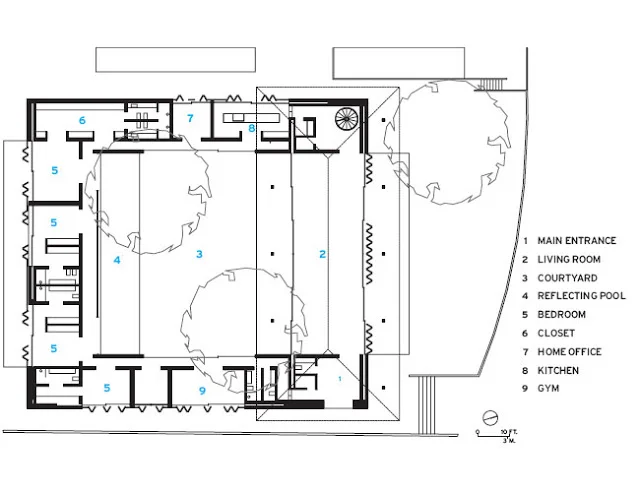
Bahia House in Salvador, Brazil

built in clean modernist geometry using earthy vernacular materials stone, wood and clay tile. This house is set around a courtyard and the living spaces are designed to become a part of the surrounding landscape. The living room is designed with sliding double walls, one with screens and another with glass. When both are opened, the living room becomes a part of the surrounding landscape. The screen walls provide privacy but allows air circulation. (All images courtesy 

Architectural Record

)

Floorplan shows the living room shown as "2" being an unobstructed space between the landscape

The living room space is designed to be a part of the surrounding landscape with double walls that slide our of the way. (Note the Rajasthani puppets on the coffee table !)

The second house that I have picked is very different in its language (materials, technology, look and feel) but its purpose still remains the same. The house is the

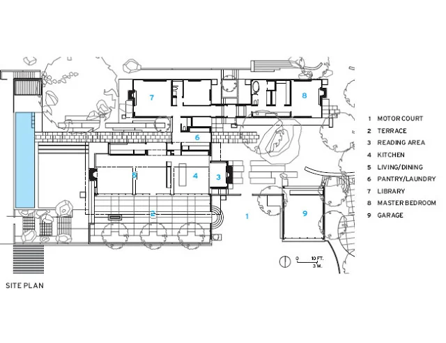
Montecito Residense in California

, designed by Barton Myers Associates. This house is a glass and steel structure that is designed 'to embrace the garden and not shutter it out'.

The beauty of this house once again lies in the design of the indoors with the outdoors. The living room once again is designed to completely open to the outside, this time with 20-foot wide steel and glass doors that open mechanically and fit under the roof when opened. In the floorplan, notice how the architect has designed the outdoor terrace to be bigger than the indoor living room clearly indicating the importance of outdoor living.

The living room completely open to the outdoor through mechanically pivoted doors

The structure is designed completely in glass and steel with the aim to open it to the outdoors

We like the way the structural metal is left exposed. We enjoy the honesty of material and clarity in design